Skip to content
Esileht
Asukoht
Hinnad ja plaanid
Galerii
Siseviimistlus
Ehituslik info
Müügiinfo
Arendajast
Kontakt
Esileht
Asukoht
Hinnad ja plaanid
Galerii
Siseviimistlus
Ehituslik info
Müügiinfo
Arendajast
Kontakt
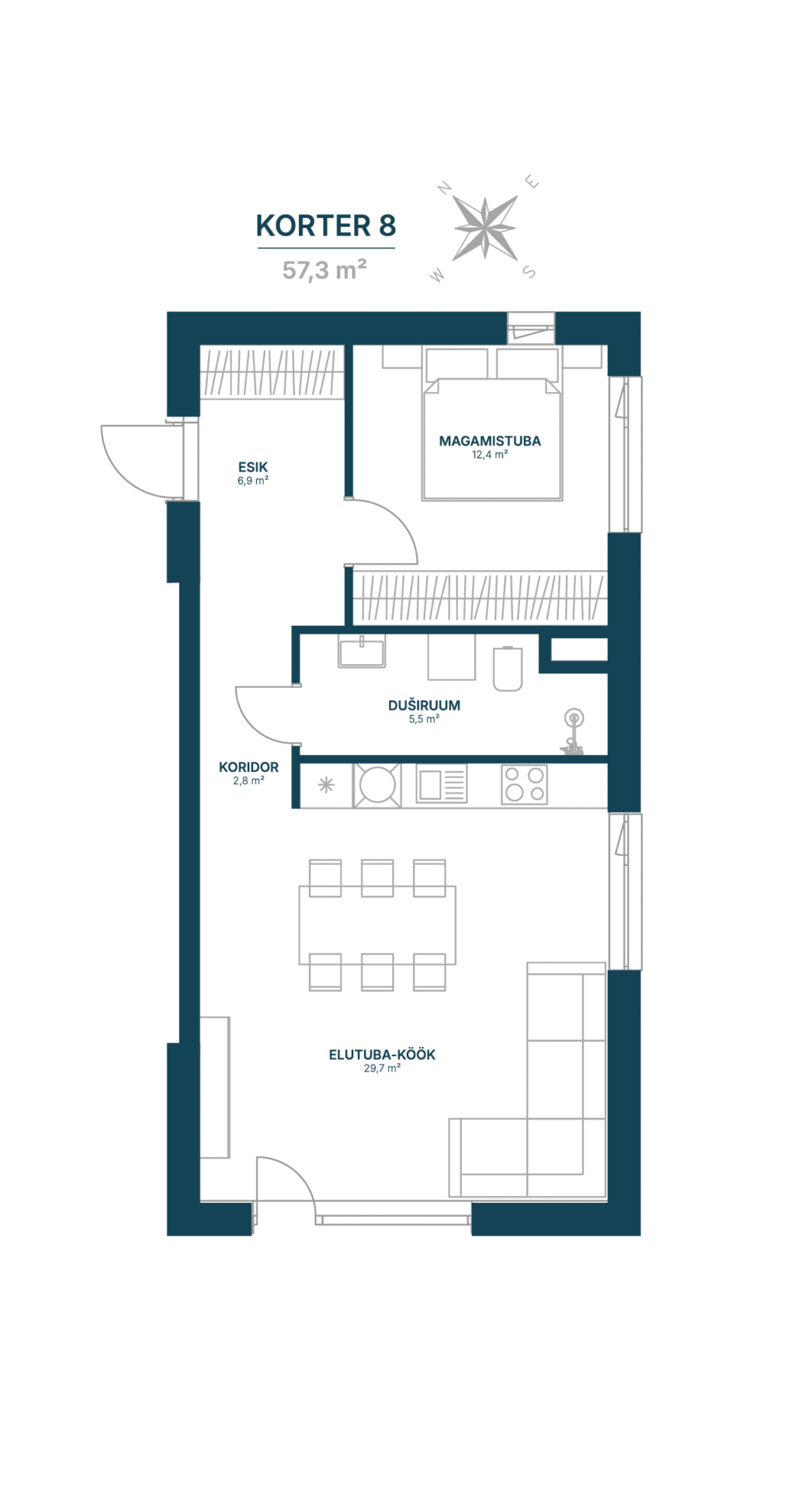
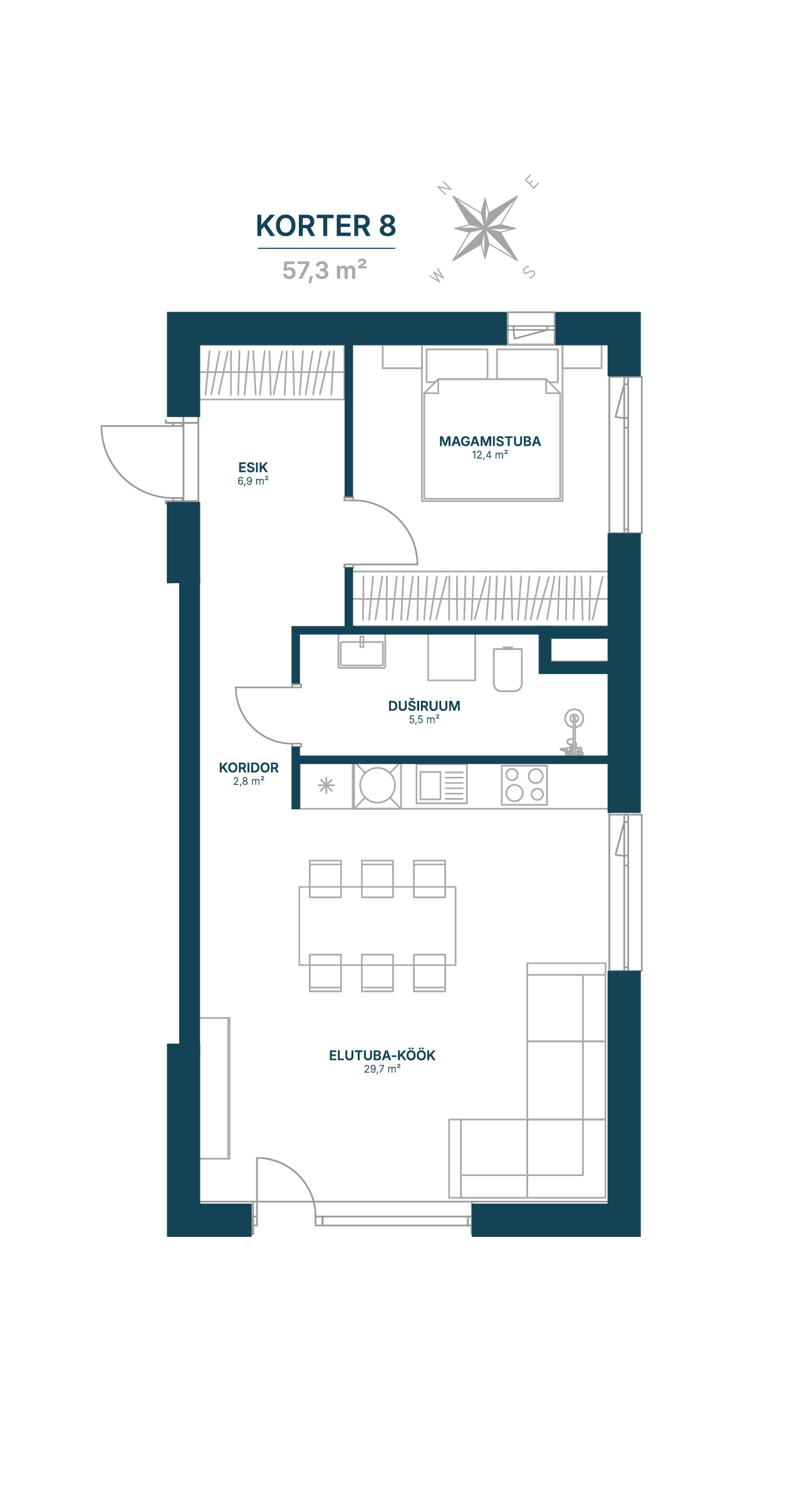
Korter 8
VAHEPERE 1B, TISKRE, TALLINN
Pindala
57.3 m²
Tube
2
Korrus
3
Panipaik
Õues
Hind
219,900 €